Redesigning an Outdoor Living Space in a Small St. Louis Park Yard
At KG Landscape, we love a good challenge, and the smaller lots of our inner-ring suburbs can certainly provide them. Limited space can lead to limited layout options and an imperative to maximize the usable space within that lot. However, from these limitations can spring creative solutions for outdoor living, and with this project, we and our client believe we found them. Here’s an example of how, with some out-of-the-box ideas and a bevy of beautiful plants, we were able to redesign an outdoor living space in
a small St. Louis Park yard in order to maximize not just its beauty but its usability.
Small Yards Have Big Potential
Having a smaller than average yard isn’t a reason to concede the entire idea of attractive landscaping. If anything, a cozier and more efficient space is an invitation to make the most of every square foot. As a suburb that saw its greatest growth in the single-family housing boom that followed World War II, homes in St. Louis Park sit on smaller parcels than you’d find in other communities farther out from the Twin Cities. That doesn’t make these lots any less desirable. These tighter quarters can be the constraints that spur on creative problem-solving—something our team specializes in.
In this case, the house was set back quite a bit from the curb, leaving a shallower backyard than is typical. The placement of the detached garage behind the house not only gave us less space to work with, it also affected sun exposure, casting shifting shadows that would affect enjoyment in late afternoons. Though we acknowledged that the back yard was the typical location for a patio, we admitted that there were few obvious locations for a patio in this smaller back yard. Rather than forcing a conventional layout that wouldn’t have pleased our client, these challenges guided a more thoughtful solution. By shifting our project to the front yard, we would be able to maximize light, circulation, and function in a space that would host inviting and memorable moments each and every summer.
Evaluating Our Options: Back vs. Front Yard
As you can see, the back yard had its share of challenges. The garage blocked the western sky, obscuring the evening sun. The yard is heavily shaded, taking away the ability to sunbathe or simply fully enjoy a clear day with a book and a beverage. Overall, construction would contend with a tighter, enclosed feeling almost more akin to a courtyard.
Like most families, this client placed a premium on enjoying their outdoor space at the end of a long day. This meant that the evening sky was critical to the character of this patio. Because the garage blocked the setting sun, the back yard lost sunlight too early in the evening. Not being able to fully enjoy the novelty of those midsummer 8:30 sunsets, to say nothing of the rest of the year, would have precluded construction even if there were more square feet to work with.
Meanwhile, the front yard seemed to be the superior solution. In the front, two mature oak trees provided a filtered canopy and calming green space without heavily shading the entire area. More blue-sky exposure meant more opportunities to bask in precious sunlight. Best of all, positioning the patio in the front would foster a greater connection with neighbors. In an age where it often seems that people are receding inward, our clients wanted to make the most of their community and maintain an open and inviting presence. To say nothing of the other geographic constraints, the front yard was the best place to do that.
The best solution to a challenging problem is rarely the most obvious one, but here, it was one that our team was able to identify.
The Design Process: Exploring Multiple Layouts
While our team is always proud of our work, we can never take full credit. Landscaping projects such as these are never fully top-down endeavors—they require active collaboration with the client, with our professionals offering multiple concepts and remaining open for discussion and feedback. We shared these six following potential approaches with our client.
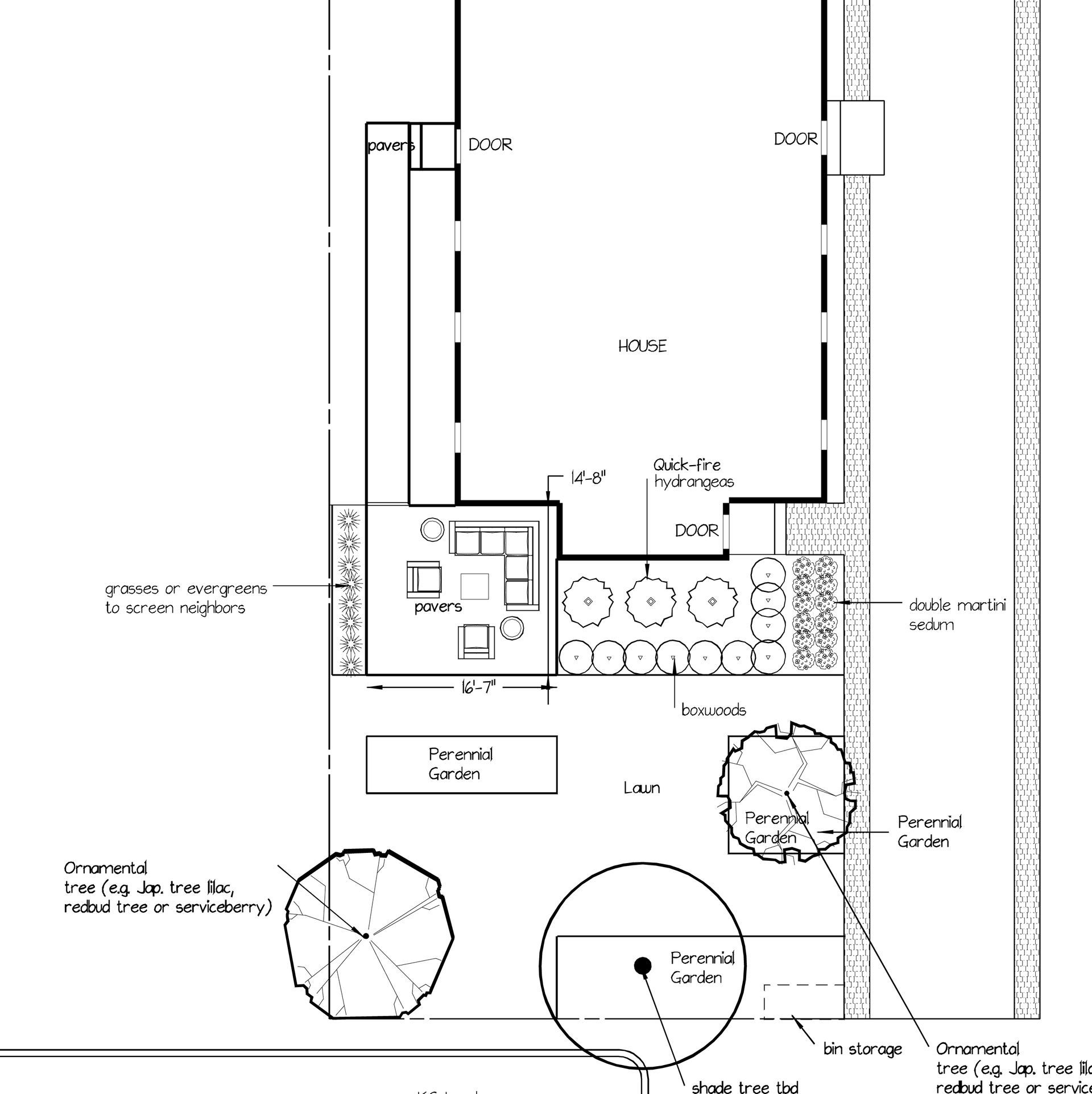
In Concept 1, the patio would be to the left of the house with a walkway wrapping around from the side door—the main point of access for the patio—to the front door on the front right, featuring gentle, rounded-off corners. A line of evergreens would set off the patio from the lot line for soft privacy, while the front lawn would feature ornamental trees and perennials. A garden of hydrangeas and boxwoods would separate the patio pavers from the side of the house.
In Concept 2, we traded the wraparound walkway for an expanded front garden, concentrating the perennials into a garden that would separate the rest of the front yard from the patio. This concept also suggested more, but smaller, evergreen plants along the lot line. A path of stepping stones would link the lawn to the front door without disrupting the new plantings.
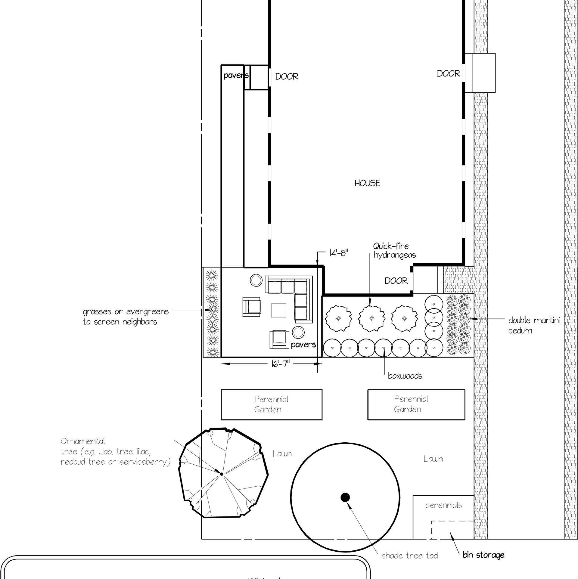
Concept 3 took a more angular approach, maintaining Concept 2’s rectangular patio and evergreen screen but erecting two garden boxes to separate the lawn from the patio. The boxwood and hydrangeas carried over from both concepts as well, but with more right angles to their planting rather than the more curvilinear arrangements before.
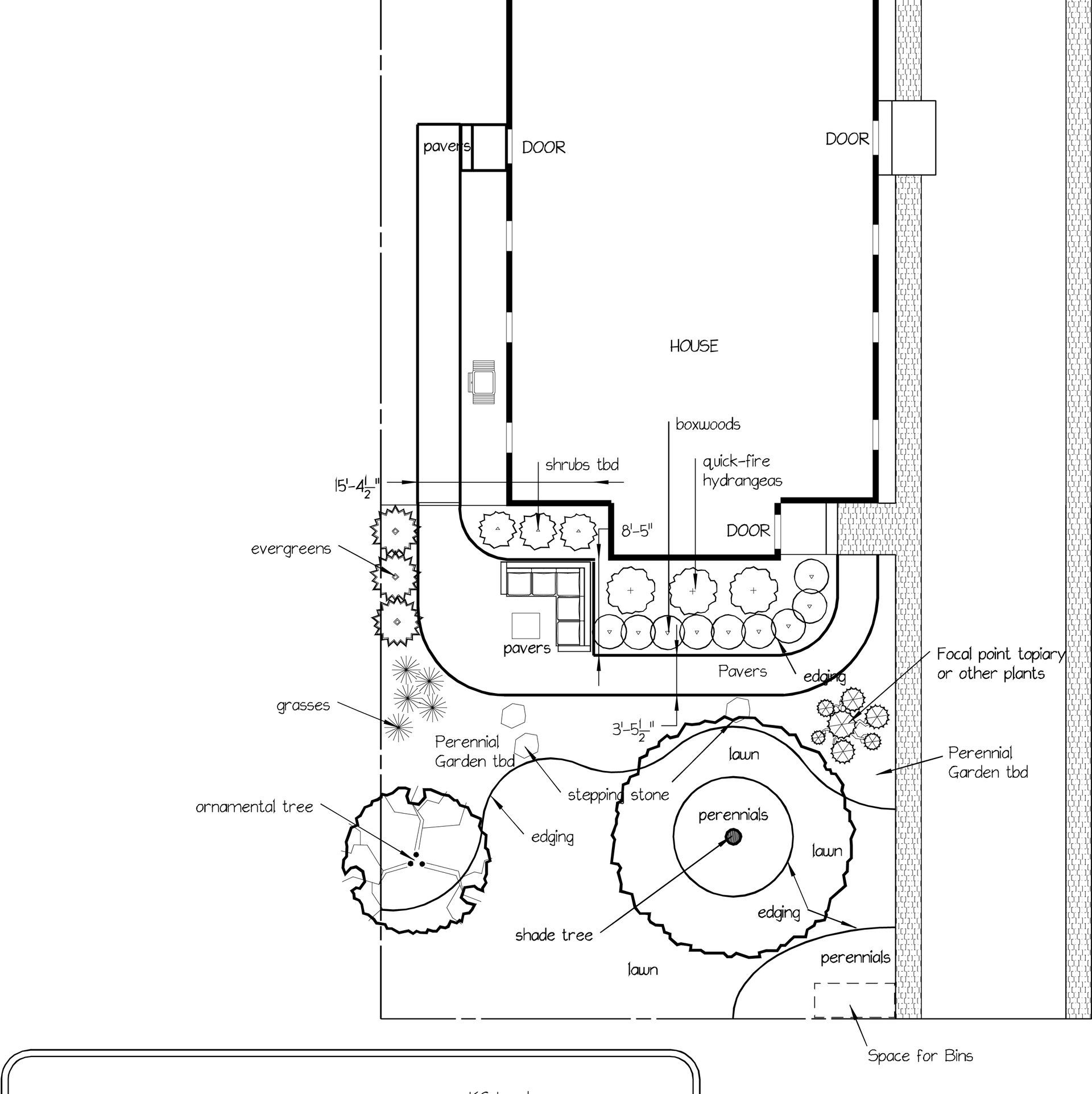
Curves and bends would return, however, in Concept 4, now with a circular patio in the same position and a firepit at the center point of that circle. The patio would feature more seating but fewer surfaces, and the garden would fully wrap around the hardscape with only a stepping stone to bridge the patio to the lawn. This design also featured a third tree on the lawn, slotting in between the larger shade tree and smaller ornamental tree. The bed of hydrangeas that had been standard in the previous concepts was substituted out for a second ornamental tree.
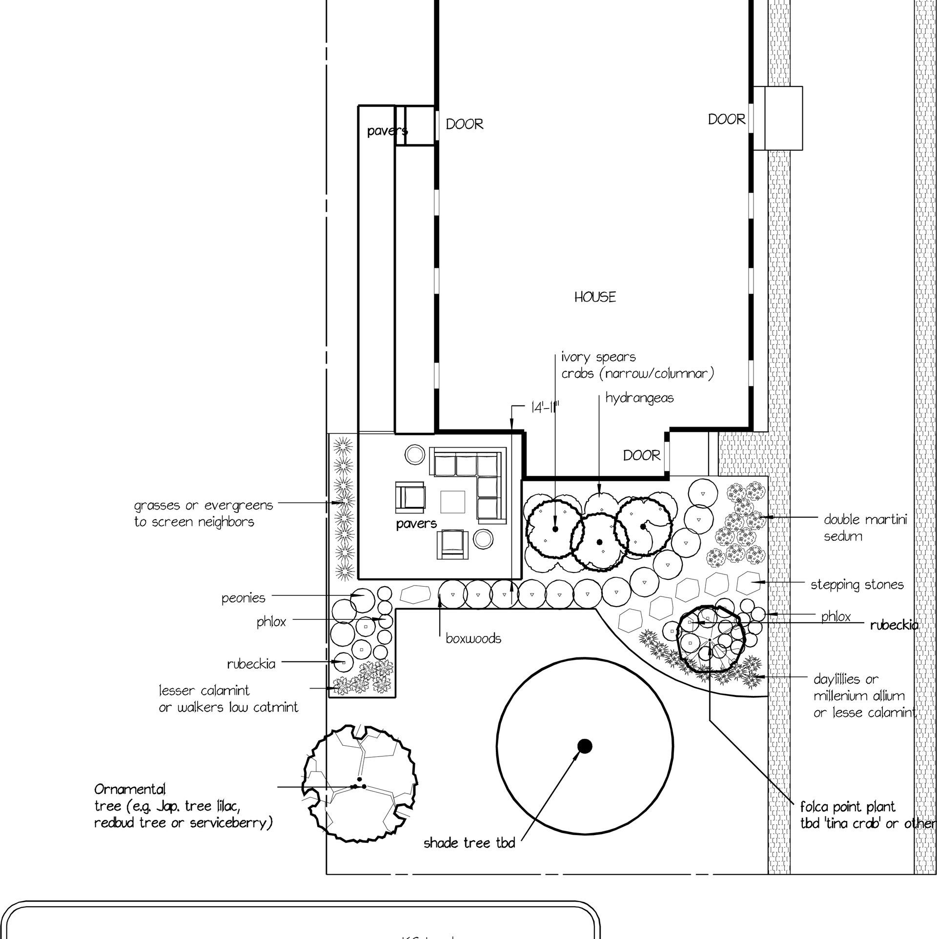
Concept 5 posited a middle way between Concepts 2 and 3, carrying over the rectangular patio and L-shaped seating as well as one of the perennial gardens from Concept 3. The second garden, however, would be built around a second ornamental tree set between the front door and the curb.
Finally, Concept 6 would return to the circular patio centered on a firepit, using a variety of tall grasses and perennials as a boundary. Both the ornamental tree and shade tree would be centerpieces of curving perennial gardens.
We presented each of these concepts to our client to solicit feedback that we could incorporate into a second round of designs. The sweeping curves we suggested in Concepts 4 and 6 didn’t maximize the limited space we were working with, narrowing our options down to the more angular concepts. Of those, Concept 5 seemed to present the best balance of patio space and attractive greenery. However, the client had a few suggestions that we were happy to take into account.
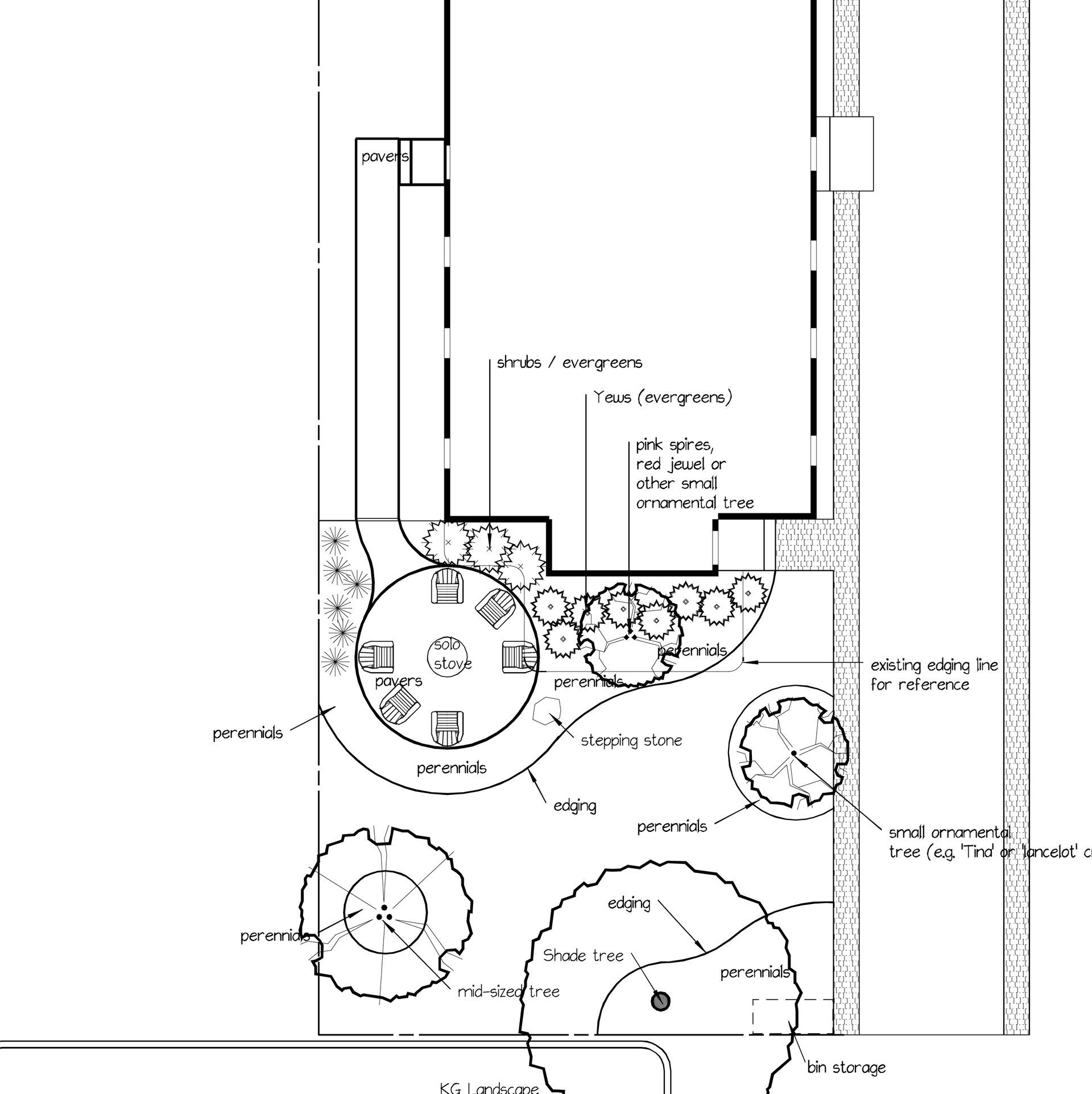
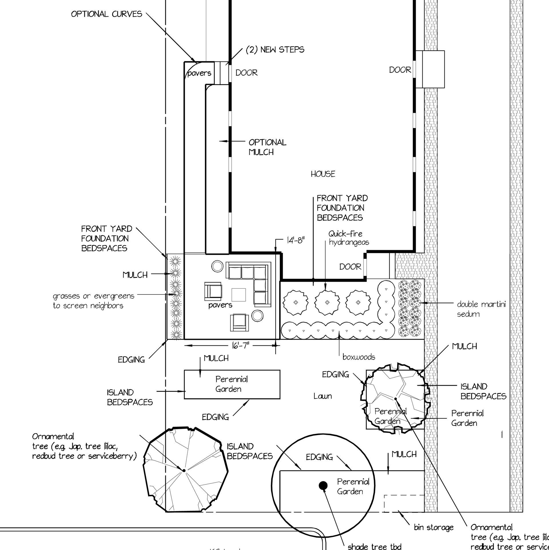
A revised Concept 5 would place more emphasis on the garden features. The perennial gardens, trees, and privacy greenery would now feature mulch as well as edging, further separating them from the lawn. We also agreed that mulch could be an option along the walkway from the side door to the patio. We determined that select aspects of the greenery, namely the privacy evergreens, would be later additions. However, we moved forward with the majority of this revised concept. All parties were satisfied with the final concept, but it was a point we arrived at through collaborative discussion, not a top-down decree or mere assumption.
Optimizing the Patio for a Small Yard
Once we settled on a plan for the whole yard, it was time to tackle the patio at a more granular level. We began by ascertaining that any hardscape would have the right dimensions for the lot. That’s because redesigning a small yard such as the ones you’ll find in St. Louis Park has a narrow margin for error, where any feature that is too big for the scale of the neighborhood appears as a glaring mistake. As landscape designers, we try to keep each element in proper proportion to one another.
Naturally, we were reluctant to make the patio too big, as not only would this disrupt the balance of the streetscape, encroaching on too much green space would take the “yard” out of “front yard.” At the same time, it was crucial not to come in too small, either, as an underbuilt patio would be too small to be fully functional. Once we settled on the right dimensions, it was just as important to fill the space elegantly, planning for ample seating without overcrowding the space with furniture. We agreed that seating for six, with space left to pull up extra chairs, would suit most gatherings.
Around the Patio: Selecting Plants, Embracing Layers
Flowers, bushes, and other plants can be among the most alluring parts of any landscape design. The challenge many landscape designers and their clients face is to keep these accents from dominating the entire project. Our strategy for doing so on this smaller lot was to embrace vertical design with a two-tiered front garden, lending a well-planned and conscientious feel to the yard.
We decided on boxwoods as the front line of the feature. As evergreen plants, boxwoods would help to frame the patio space all year long, even after deciduous trees and flowers saw their seasons end. The boxwoods’ clean, well-manicured edges would provide order and intentionality to the gardens, emphasizing the work that went into cultivating this space.
By vertically layering plants, however, we could add another degree of Above and behind the boxwoods would be an array of Little Quick Fire hydrangeas. Unlike traditional hydrangeas, whose blooms can become top-heavy and droop over time, the Little Quick Fire variety bears thinner blooms that resist sagging after storms. They also develop a warm pink tone as the summer progresses, adding an extra pop of color to the lawn. The plantings, which grow to about 4’ tall, would help to create a soft enclosure without a full privacy wall. And after the plants are out of season, our client would have the option not to fully prune them for the winter, leaving behind dried stems and blooms as a winter feature.
Building on the principle of reinforced order that our boxwood plantings established, we supplemented the garden with another hardy plant that would help to shape the outdoor space, this time near the front door. The Double Martini sedum is a short, stout, and flowery shrub that lends itself nicely to clean lines, reinforcing the lines and angles of the house structure itself. They also guide both eyes and feet to the patio just across the way.
Lawn & Grading as Supporting Elements
In addition to supporting the new patio with attractive landscaping, we also took the opportunity to
regrade the lawn for optimal drainage. More compact yards cannot hide grading errors gracefully, and taking the time to ensure a clean and gentle slope would make sure the yard not only appeared immaculate but also properly handled rainfall.
An intentional regrading would also make sure that the lawn and garden coexisted gracefully, with no awkward sloping interfering with the patio or plantings.
Why Creativity Matters More in Small Yards
A small yard can be more than just an afterthought. Rather than treating it as a postage stamp of grass fit for no more than adequate maintenance, it can be a well-crafted gem of greenspace. But when that greenspace is limited, every square foot matters. Every degree of the sun’s angle matters. And every bit of foot traffic in tight quarters matters, too. It takes thoughtful and intentional design to maximize modest parcels of land, whether that’s in St. Louis Park or other inner-ring suburbs, and the team at KG Landscaping boasts the creativity, expertise, and collaborative spirit to do just that.
The Final Result: A Comfortable Outdoor Living Space
By redesigning this outdoor living space in a small St. Louis Park yard, our client was able to reap the benefits of a well-designed space. The setting sun shone on their front yard every evening, lending warmth and picturesque views to every alfresco dinner, all under the leaves of a mighty oak. Plant beds were well-defined and immaculately arranged, but still flowed and breathed with the entire landscape. And the patio itself was just the right size to host family and neighbors without feeling cramped or compromised.
Just as our clients were, we were pleased to make this patio a perfect fit. But we do more than make patios fit into yards. We design full outdoor living spaces that complement any property of any size.
















