How We Removed a Short Awkward Deck at a St. Paul Home and Designed a New Patio and Outdoor Living Space
Serving clients in the Minneapolis, St. Paul, Edina, Plymouth, Minnetonka & Blaine areas
A small deck off the back door sounds useful until you try to use it.
This St. Paul home had one of those decks. Barely big enough for two chairs. Falling apart. The steps kicked you off to the side instead of straight out toward the garage, which meant every trip between the house and garage felt awkward. The yard behind it was worse. Clay soil sloped toward the garage, so water pooled where it shouldn't. Three large planters took up most of the lawn area. There was no real space for the kids to play, nowhere to set up a table for dinner outside, and definitely no room for guests.
The previous owners had piecemealed things together over the years. A planter here, a deck there. None of it worked together. None of it was functional.
The homeowners reached out because they wanted something different. A real outdoor living space. Room for their dog and young family. Some privacy from the neighbors in this tight Highland Park neighborhood. And a backyard that actually made sense.
We started with a design consultation to look at the site conditions and talk through what they wanted. By the end of that conversation, we all agreed the current layout wasn't salvageable. A redesign was the right move.
[IMAGE: before picture of st. paul backyard .HEIC]
[IMAGE: Before pictute of St. Paul backyard .HEIC]

Project Snapshot
Project Location: St. Paul, MN (Highland Park neighborhood)
Property Type: Residential
Primary Issue: Backyard redesign, new patio, new back steps
Solution Installed: Complete backyard landscaping and hardscaping redesign
The Problem
The existing deck was tiny. Maybe 6 feet square. And the layout made no sense. You walked out the back door and immediately had to turn 90 degrees to get down the steps. Not toward the garage. Not toward the yard. Just off to the side. It felt wrong every time you used it.
The deck was also falling apart. Boards were rotting. It was past the point of repair.
Beyond the deck, the backyard had its own problems. The soil was heavy clay, and years of random landscape projects had left the grade sloped toward the garage. Water ran right at the foundation instead of away from it. The three large planters the previous owners installed took up the majority of the open space, leaving almost no usable lawn.
Access was limited too. The side yards were too narrow to bring equipment through, so everything had to come in through the alley at the back of the property. We removed fence panels to get crews and machinery in and out.
The homeowners wanted space for a table and chairs. A spot for the grill. Room for their dog and kids to run around. Privacy from the neighbors. And drainage that actually worked.
The existing yard couldn't give them any of that.
Options We Explored
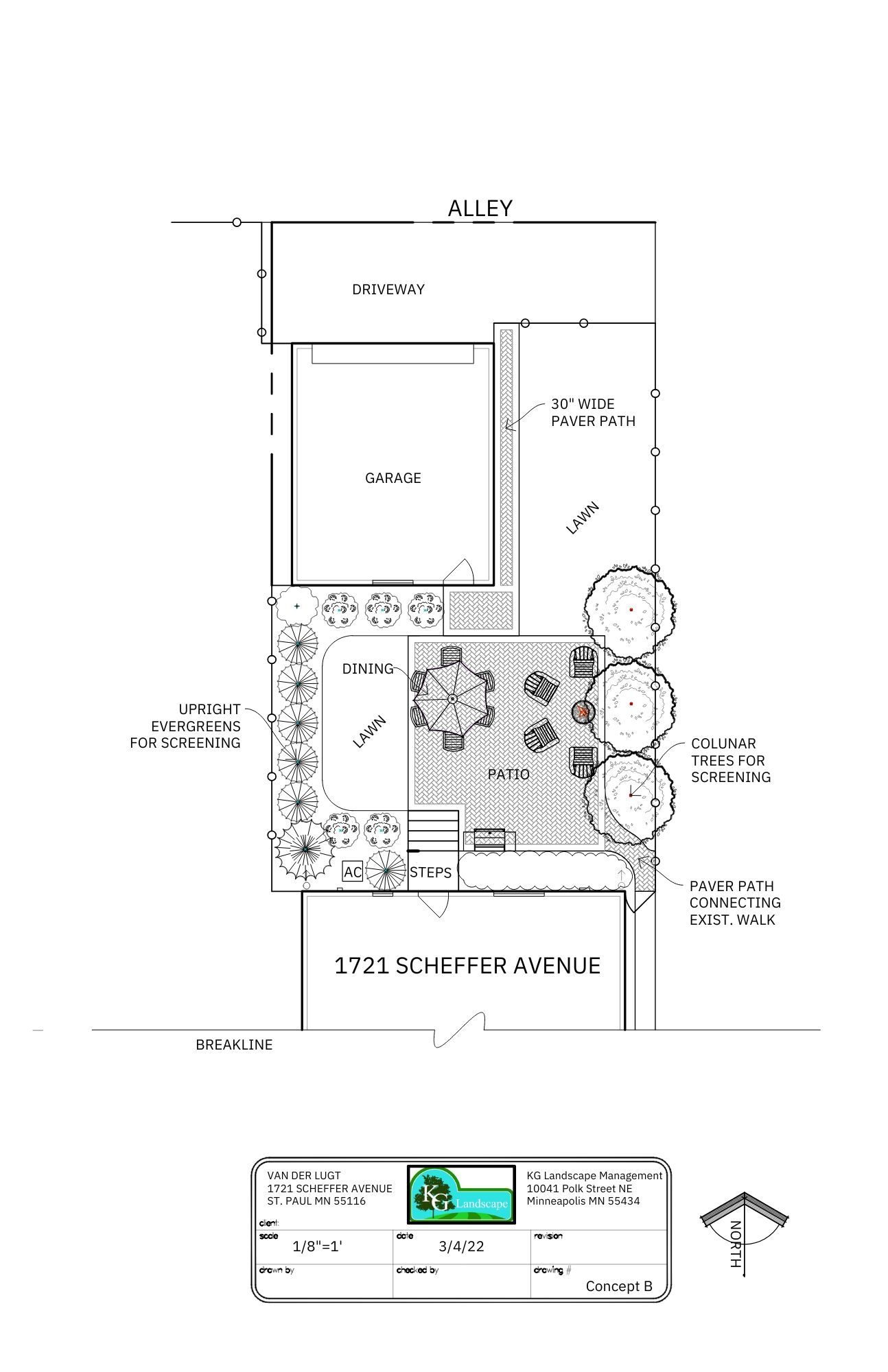
We developed several concept designs during the landscape design process. The goal was to test different layouts and figure out what would work best for this particular St. Paul backyard.
All of the concepts removed the unusable deck. That was a given. The question was what to replace it with.
[IMAGE: Van der Lugt Site Plan-Patio A.pdf]
[IMAGE: Van der Lugt Site Plan-Patio B.pdf]


We explored layouts that included two primary zones on the patio: a spot for a four-person table with chairs and a grill, plus a secondary space that could work for a lounge set, a hammock, or a portable fire ring. That flexibility matters on a small lot. Rather than dedicating separate areas to each use, you can swap furniture based on how you want to use the space on a given night.
We also tested different shapes and sizes for the landing and steps at the back door. The most obvious version sends you straight out toward the garage, since that's where you're headed most of the time. We looked at curved steps that would have allowed flow in multiple directions, both straight out and around the corner to the side yard. Those would have been nice, but they were slightly out of scale for this property and exceeded the budget.
We considered curvilinear patio shapes as well. They would have softened the look. But given the small rectangular footprint of this St. Paul backyard, clean lines ended up being the best fit.
One concept included additional lawn sections next to the main patio that could serve as overflow seating. We ultimately decided against it. Better to extend the patio to cover the full outdoor living area and keep one large, functional lawn section rather than breaking things up.
[IMAGE: Van der Lugt Site Plan-Patio C.pdf]
[IMAGE: Van der Lugt Site Plan-Patio D.pdf]
[IMAGE: Van der Lugt Site Plan-Patio E.pdf]



The Design We Selected
The final design completely removed the deck and replaced the old concrete stoop that was falling apart. The new layout included a concrete landing with a 4-foot run and steps that flow directly onto the patio and toward the garage. No more hard right angle out the back door.
[IMAGE: Van der Lugt FINAL PLAN concept C Rev 3 kents plant 5 11 2022.pdf]

The new patio was sized for a table and chairs, had a dedicated spot for the grill near the back steps, and included an additional zone the homeowners planned to use interchangeably for a lounge set, hammock, or portable fire ring.
The design also solved every drainage problem on the property. We regraded the area between the house and garage so the 15 feet closest to the house slopes away from the foundation, while the 5 to 10 feet closest to the garage slopes away from the garage. This created a swale in the middle that collects water, channels it into a catch basin installed in the planting bed, and directs it through underground pipe to discharge at the low point in the back of the yard. No more water running toward structures. No more pooling on the patio or lawn.
The homeowners chose Belgard Dimensions pavers, a three-piece set in the mid to large size range. It's a good value with a modern look and a much higher-end feel than poured concrete. Pavers also resist freeze-thaw damage better than concrete, which matters in Minnesota. When selecting pavers for a Twin Cities project, color palette matters. The warm tones we chose pulled from the colors on the house and carried them down into the landscape.

Plantings That Do More Than Look Good
The plantings weren't just decorative. Each bed served a specific purpose.
On the south side of the patio, we installed narrow upright Apollo maples. These will grow together over time to form a green wall that screens views of the neighboring home without taking up much horizontal space. They'll also provide afternoon shade from the southern sun exposure, which makes the patio more comfortable in summer evenings.
Between the patio and the garage, we designed a layered planting filled with flowers. The goal was to soften the feel of being near the garage wall. Without plantings, you'd feel like you're sitting between two buildings. With them, it feels like you're in a garden.
On the north end, we used large ninebark shrubs. They're small in the photos, but they'll grow to about 6 feet tall. The existing fence on that side is only 4 feet, so the ninebark will provide additional screening without crowding the patio.
We also added foundation plantings between the house and patio. This area was graded to send water away from the house, across the patio surface, and into the swale and catch basin on the other side.
The University of Minnesota Extension recommends selecting plants suited to your specific site conditions, including sun exposure, soil type, and mature size. We selected varieties that would thrive in this St. Paul yard while serving the functional goals of privacy, screening, and softening the hardscape.
[IMAGE: after regraded bed space along garage to flow away for drainage and added planting.png]
[IMAGE: after 2 regraded bed space along garage to flow away for drainage and added planting]
How We Built It
We started by removing the old deck, footings, and concrete stoop. Jackhammering out that old landing took some time. We also removed soil and debris to make room for the base gravel below the patio, cleared out the old planters, and set the rough grade between the house and garage according to our drainage plan.
Next, we installed frost footings for the new concrete landing and steps. The concrete went in before the patio so we could set the patio elevation precisely. When you build the steps first, you can make sure every riser is exactly the same height, including the step from the patio surface to the first tread. Uneven risers are a safety issue and look sloppy. We don't do that.
For the patio base, we compacted the subsoil with a plate compactor, then lined it with geotextile fabric to prevent gravel migration. This adds significantly to the longevity of the patio. We installed Class 2 base material, compacted it heavily while setting pitch and elevations, then added granite chips as our screeding material. Granite is more durable than the sand some companies use.
We laid the Belgard Dimensions pavers, cut the shape, and installed a decorative soldier course around the border. Snap edging went in to support the patio edges. Then we swept in polymeric sand, cleaned the surface, and lightly wet it so the sand would set properly between the joints.
After the patio, we poured the concrete walkway sections connecting the patio to the garage and around to the back gate. Another section connects the patio to the side yard gate and the existing walkway along the north side of the house.
Throughout the hardscape work, we installed the underground drainage system, including gutter extensions and solid PVC drain pipe running below the patio and walkways.
Once hardscape and drainage were complete, we installed the designed plantings, bed edging, and fresh mulch at about 4 inches deep. Mulch settles after the first couple months, so going thick upfront maximizes weed control and moisture retention. If you go too thin, you're looking at bare soil by the end of the first season.
Final steps: grading touches on the lawn area, grass seed, seed blankets. We watered everything in before leaving each day. After all work was complete, we cleaned up our staging areas, reinstalled the fence panel we'd removed for access, and power washed where we'd parked equipment.
[IMAGE: After new concrete landing and steps to replace a short deck off back door.png]
[IMAGE: After new underground downspout with drain pipe running below the new sidewalk...]

The Result
The backyard went from unusable to functional.
Where there used to be a rotting deck too small for furniture, there's now a patio with room for a dining table, a grill station, and a flexible lounge area. The new steps send you straight out the back door toward the garage, the way they should have all along. Snow removal is easier. Daily trips between house and garage are easier. Everything flows.
The drainage works. Water no longer runs toward the garage. The floor stays dry even after heavy rain. The patio and walkways are protected from erosion because the downspouts now run underground.
The lawn area is smooth and usable. The kids and dog have space to play. The plantings provide privacy from the neighbors without making the yard feel closed in.
The footprint of this St. Paul backyard is still small. It's still a tight Highland Park lot. But the functionality of the space we created is big.
[IMAGE: new st. paul backyard patio space for small yard with flowers.png]
[IMAGE: After picture of new patio and screen planting in small st. Paul backyardl .JPG]
[IMAGE: after new patio space with spae for table and chairs and grill.JPG]
[IMAGE: after Smoothed out lawn space in small st. Paul backyard.png]
[IMAGE: after view of the new backyard patio and plants as guests arrive from teh sideyard...]


Why This Approach Worked
Backyard landscaping plans need to maximize every square inch of space. That's especially true on small lots like this one in St. Paul.
Our solution worked because we didn't just pick a layout. We tested multiple options during the design phase, evaluated how each would function for everyday use, and selected the one that made the best use of what they had.
We accounted for proper drainage from the start rather than treating it as an afterthought. We laid out furniture during the design process to test flow and make sure you wouldn't constantly be moving chairs to walk through the space. We planned plantings that would serve functional goals, not just look nice.
The homeowners didn't just pick a plan. They selected the plan that worked best for their space and how they intended to use it. That's the difference between a backyard that looks good on paper and one that actually works for everyday outdoor living.
[IMAGE: After picture of new backyard patio space .JPG]
[IMAGE: after new backyard patio space for small yard in St. Paul MN.png]
[IMAGE: after stepiing stone to access hose spigot.JPG]

Ready to Rethink Your St. Paul Backyard?
If your backyard feels pieced together, or if you've got a deck that's falling apart and a layout that doesn't work, we can help you figure out what's possible. Every property is different. A site evaluation is the first step toward understanding your options and finding a solution that fits how you actually want to use your outdoor space.
Frequently Asked Questions
How long does a backyard redesign like this take?
A project of this scope typically takes several weeks from start to finish, depending on weather and site conditions. The design phase comes first, which involves site evaluation, concept development, and revisions until we land on the right plan. Construction timing depends on the complexity of the hardscape, drainage work, and planting. We coordinate all trades so the project moves efficiently without cutting corners.
Can you work on a small lot with limited access?
Yes. Many St. Paul properties have narrow side yards that don't allow equipment through. In those cases, we access the backyard through alleys, temporarily remove fence panels, or work with smaller equipment. Limited access adds some logistics, but it doesn't prevent us from doing quality work. We plan for it during the design and estimating phase.
Is it worth replacing a deck with a patio?
It depends on your goals. Decks require maintenance, can rot over time, and often don't provide much usable space if they're small. A paver patio offers more durability, requires less maintenance, and can be designed to fit the exact shape and size you need. Patios also allow for better drainage planning underneath. For homeowners who want a low-maintenance outdoor living space, patios often make more sense long term.
How do you handle drainage on a flat or poorly graded lot?
We evaluate the existing grade and soil conditions during the design phase. If water is running toward the house or garage, we regrade the area to direct it away. We use swales, catch basins, and underground drain pipe to move water where it needs to go. On this St. Paul project, we created a swale between the house and garage that collects water and channels it to a drain that empties at the back of the yard. Proper drainage planning is built into every project.
What pavers do you recommend for Minnesota weather?
We typically use concrete pavers from manufacturers like Belgard because they're designed to handle freeze-thaw cycles. Unlike poured concrete, pavers flex slightly with ground movement rather than cracking. The joints between pavers allow for expansion and contraction. We also use polymeric sand in the joints, which hardens to prevent weed growth and ant intrusion while still allowing some flexibility. The specific paver style and color depend on your aesthetic preferences and budget.
About the Author
Kent Gliadon is the owner and principal designer at KG Landscape, a Minneapolis-based landscape design and build company serving homeowners across the Twin Cities for over 20 years. Kent studied landscape architecture and earned a bachelor's degree in Environmental Horticulture at the University of Minnesota, with emphasis in turf science and landscape design.
