How We Designed a Cozy Patio and Pergola for a Small Backyard in Edina

New construction homes in East Edina come with trade-offs. You get the neighborhood, the schools, the walkability. But the lots are tight. When an older home gets torn down and a bigger house goes up in its place, the backyard shrinks. That was the situation here.
This family had just moved into a new build on a small lot. The house was great. The backyard was not. No patio, no walkway, no real transition from the back door to the yard. The builder had left a single temporary wooden step off the patio door and called it done.
They reached out to us with a long list: a patio with room for dining, lounging, and grilling. A pergola. Horizontal cedar fencing. A raised garden. Room for a play set. And enough open lawn for the kids. All of it had to fit between the patio door and the gate leading out to the garage and driveway off the alley. When space is this tight, every square foot has to earn its place.
Edina Patio and Pergola Project at a Glance
Project Location: East Edina, MN
Property Type: Residential (new construction)
Primary Issue: Small backyard with no patio, no outdoor living space, and limited room for both a patio and open lawn
Solution Installed: Paver patio with circular inlay, cedar pergola with string lights, custom quarter-circle step landing, horizontal modern cedar fencing, preserved open lawn for kids
What This Edina Family Needed From a Small Backyard
The backyard was a blank rectangle of grass between the house and the garage. No patio, no landing, no connection to the rest of the yard. The builder had left a single piece of wood as a temporary step off the back door with nothing below it.
The lot was small relative to the house. That's common in East Edina, where new construction replaces smaller older homes on the same footprint. The house gets bigger, the lot stays the same.
The family wanted a full outdoor living area: a dining set, a lounge with a sofa, loveseats, and an ottoman that works as a coffee table, a dedicated grill spot, and a pergola to make it feel like a real room. They also wanted horizontal cedar fencing, a raised garden bed, and space for a play set. And they needed to keep as much open lawn as possible for the kids.
The space also had to function as a walkway. The path from the patio door to the gate leading to the garage and driveway off the alley runs along the garage wall. Whatever we built couldn't block that access. That's a design challenge, not just a construction job.
Exploring the Patio vs. Lawn Trade-Off for This Edina Lot
We put together several concept designs, and the big question running through all of them was the same: how much patio, and how much lawn?
A bigger patio means more room for furniture and a more generous feel. But it eats into the lawn, and for a family with kids, that lawn is functional. The concept designs explored different shapes, sizes, and furniture layouts. Some were more rectangular. Others played with curves to soften the edge and create a more natural transition into the yard.
We also tested different approaches to the pergola footprint and the walkway between the patio door and the driveway gate. In some concepts, the pergola covered most of the patio. In others, it was pulled back to leave part of the space open to the sky. The walkway width shifted depending on where the grill landed and how much room the lounge furniture needed. Small changes in one area rippled through the whole layout.
This is what the concept design phase is for. You can compare three or four options side by side and make a decision based on what actually matters most. In this case, that meant keeping the patio as contained as possible while still fitting everything they wanted.
The Final Patio and Pergola Design We Chose for This Backyard
The final design was about restraint. Instead of building the biggest patio the yard could hold, we sized it to be only as large as it needed to be.
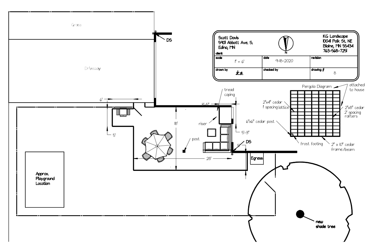
Three distinct zones: a dining area centered on a circular inlay, a lounge area with room for a sofa, loveseats, and an ottoman, and a grill station placed out of the main walkway between the patio door and the garage gate. A cedar pergola would span the patio to create the feeling of an outdoor room, with string lights for landscape lighting in the evenings.
The step off the back door was worth getting right. Rather than a rectangular landing parallel to the garage wall, we designed a quarter-circle landing with a slight angle. The garage wall is right there. A straight step funnels you along it. The angled step opens things up, feeding you onto the patio with the option to go either direction.
Horizontal modern cedar fencing along the property line for a clean contemporary feel. And the design intentionally left the largest possible stretch of open lawn for the kids and a play set. For homeowners exploring similar projects, our outdoor living spaces page covers more about how we approach these designs.
Building the Patio, Pergola, and Custom Details in Edina
The pergola went up in all cedar. Cedar holds up well in Minnesota's freeze-thaw cycles and weathers to a natural gray. We ran string lights along the beams for evening ambiance. According to the University of Minnesota Extension, cedar is one of the most naturally durable softwoods for outdoor construction in our climate, resisting decay and insect damage without chemical treatment.
The custom quarter-circle step landing was built at a slight angle to the garage wall. Most builders would set a rectangular step parallel to the house. But when the garage wall is right there, a straight step pushes you along it. The angled landing creates a pivot point. You step out, and the patio opens up in front of you.
One standout detail in this Edina landscaping project: the circular inlay pattern where the dining table sits. Without it, the circular section of the patio looks like a blob, an undefined curve lost in the larger field of pavers. The inlay defines the shape, gives it architectural intention, and adds a high-end touch. If you're weighing paver options, the inlay detail is worth considering.
The grill sits off to the side of the walkway between the patio door and the driveway gate so it never blocks access. That kind of thinking is what makes a patio design work in practice, not just on paper.
The horizontal cedar fencing went in along the perimeter, giving the yard a clean modern line and some privacy from the neighbors without making the space feel boxed in. On a small lot, solid six-foot privacy fencing can make a backyard feel like a pit. The horizontal boards keep things open while still creating a visual boundary that separates this yard from the ones next to it.
Installation Details
How This Small Edina Backyard Turned Out
The family got everything they asked for, and the yard didn't feel cramped.
The patio fits a full dining set on the circular inlay, a lounge with sofa, loveseats, and ottoman, and a grill station that doesn't block the walkway. The cedar pergola with string lights makes it a real outdoor room. The kids have a full lawn with room for a play set on the far side.
The flow between the back door, the patio, and the driveway gate works the way it should. You step out onto the angled landing and the whole space opens up. You can head to the dining area, settle into the lounge, or walk straight through to the gate without squeezing past furniture or stepping over anything. That was one of the hardest things to get right on a lot this size, and it works.
This project was completed in 2022. The homeowners were happy enough with the results that they hired us back for another project the following season. That kind of repeat business says more than any review.
Why Intentional Design Mattered on This Small Edina Lot
Small lots demand precision. The reason this project worked is that the design was intentional from the start.
The concept phase let the homeowners compare several options and see the trade-offs between patio size and lawn space before anyone picked up a shovel. The pergola created the psychological boundary of a room, giving the patio a ceiling and a sense of enclosure. According to the National Association of Landscape Professionals, defined outdoor living spaces are one of the most requested features in residential landscape design.
Every feature earned its spot. The circular inlay defines the dining area. The angled step improves flow. The grill placement respects the walkway. The fencing adds privacy without boxing things in. The lawn stayed as large as possible. If you're working with a small lot in Edina or anywhere in the Twin Cities, the concept design phase is where the real work happens.
Frequently Asked Questions
How much does a patio and pergola project cost in Edina?
Every project is different. Cost depends on patio size, materials, features like pergolas or inlays, and site work involved. The best way to get a realistic number is to schedule a consultation so we can look at your yard and goals and walk through the options.
Can you fit a full outdoor living space in a small backyard?
Yes, but the design has to be deliberate. A small lot doesn't give you room to guess. The concept design phase lets you compare multiple layouts and decide what matters most before construction starts. This Edina project is a good example: tight lot, but the family ended up with dining, lounging, grilling, a pergola, and lawn for the kids.
What is a circular paver inlay?
A circular inlay is a contrasting paver pattern set into the main patio surface to define a specific area, like a dining space. Without it, curved patio sections can look undefined. The inlay gives the shape architectural intention and makes the whole patio feel more finished.
Why use cedar for a pergola in Minnesota?
Cedar naturally resists decay and insect damage, which matters in a climate with harsh winters and wet springs. It holds up through freeze-thaw cycles without chemical treatment and weathers to a silver-gray most homeowners find attractive. For a pergola sitting outside year-round in the Twin Cities, it's one of the best options.
How long does a patio and pergola project take?
A straightforward patio and pergola installation can often be completed in one to two weeks of on-site work. The design phase typically takes a few weeks before that. Most Twin Cities homeowners start in late winter or spring so construction can happen when the weather cooperates.
Start Planning Your Edina Patio and Pergola Project
A small backyard doesn't have to mean small ambitions. We work with homeowners across Minneapolis, Edina, and the surrounding Twin Cities to turn backyards into spaces that actually get used.
If you're thinking about a patio, pergola, or outdoor living project, request an onsite design consultation to get started. We'll walk the space with you, talk through options, and show you what's possible.



















